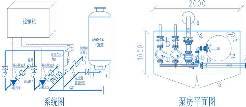
产品介绍
product presentation本产品是为了解决临时高压消防给水系统之高位消防水箱设置高度满足不了该系统最不利点静水压力要求的需要,设计了为消防专用的箱泵一体化消防稳压设备。其由不锈钢水箱(装配式或焊接式)、泵房、 旋流防止器、隔膜式气压罐、水泵、电控箱、仪表、管道及附件等组成。

设备设计原理:
1)使消防给水管道系统最不利点始终保持消防所需压力;
2)使气压水罐内始终储有不小于150L消防水量。利用气压水罐所设定的P1、P2、PS1. PS2运行压力, 控制水泵运行工况,达到稳压的功能。P1为最不利点消防所需压力(MPa) , P2为消防泵启动压力所对应的稳压设备压力(MPa) , PS1为稳压泵起泵压力(MPa) , PS2为稳压泵停泵压力(MPa),箱体保证初期补救用水量。


运行控制全过程:
根据计算求得消火栓系统或自动喷水灭火系统中最不利点所需的消防压力P1,作为气压水罐的充气压力。通过计算所选定的气压水罐规格及ab值,求得P2,并设定PS1=P2+(0.02~0.03), PS2=PS1+(0.05-0.06)。平时管道系统如有渗漏等泄压情况,控制稳压水泵不断补水稳压,在PS1、PS2(启动停止)反复运行。一旦有火情,消防管道系统大量缺水,消防水箱出水管上流量开关闭合,启动消防泵运行。

设备性能:
1) 本"设备”电控系统具有自动、手动功能,并与消防控制中心或消防泵房联动。
2) 两台稳压水泵一用一备,轮流工作,自动切换,交替运行。
3) 平时使消防管网处于高压状态,并保持罐内储存一定水量,由于泄漏等原因,系统压力下降到PS1时,1 号泵自动启动,水压上升至PS2时停泵,下次压力又下降到PS1时,2号泵自动启动,如此交替运行,使系统压力始终保持在PS1和PS2之间。
4) —旦有火情发生,流量开关输出信号自动启动消防泵。
5) 具有就地显示和远程显示正常液位以及高低水位报警功能。
6) 安装周期短。
7) 节省空间,无需建泵房,节省投资。
8) 节能环保:该产品可二次利用和再生,完全符合国家环保标准规定,并且噪音小。
9) 维护检修方便。

适用范围:
本产品适用于多层高层建筑工程有稳压设施要求的消火栓给水系统及湿式自动喷水灭火系统等各类消防给水系统。

公司优势
COMPANY ADVANTAGE热品推荐
Hot product